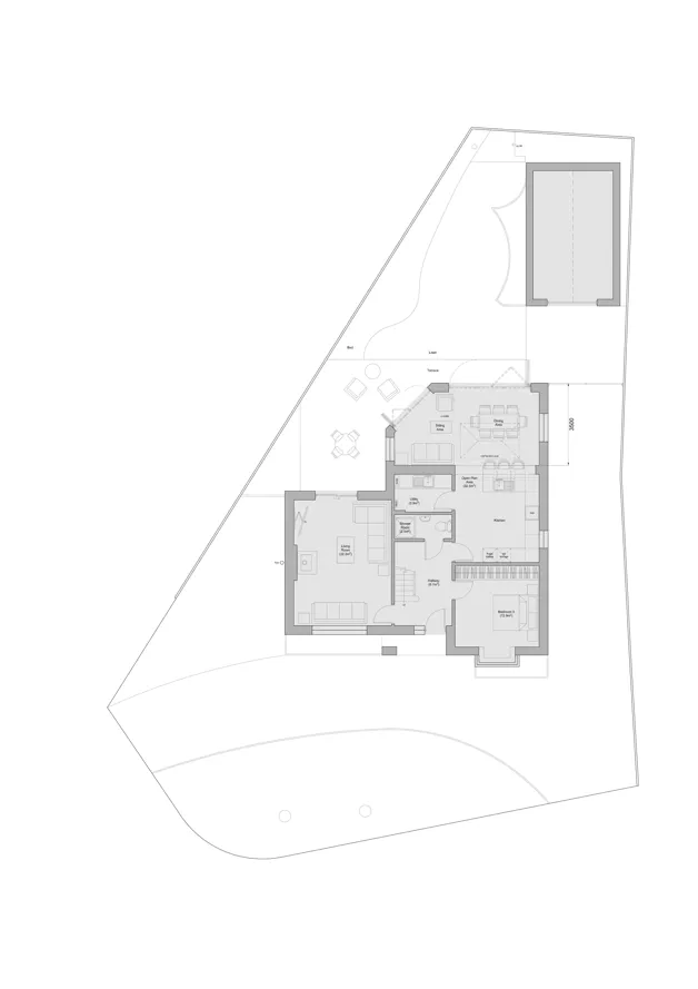
We've recently been approved for this single storey extension in Swanage, featuring an angular parapet roof clad in Purbeck stone, with a large lantern rooflight and tall bifold doors. This extension will give the client a great open plan entertaining area while retaining a separate snug / living room.

1271 Planning Render
1271 Floor Plan

Call for a free consultation

01202 558166